Серия HG предлагает пять классов точности: нормальный (C), высокий (H), прецизионный (P), супер прецизионный (SP) и ультра прецизионный (UP). Каждый из них определяет допустимые геометрические отклонения и область применения.
Что такое класс точности и почему он важен
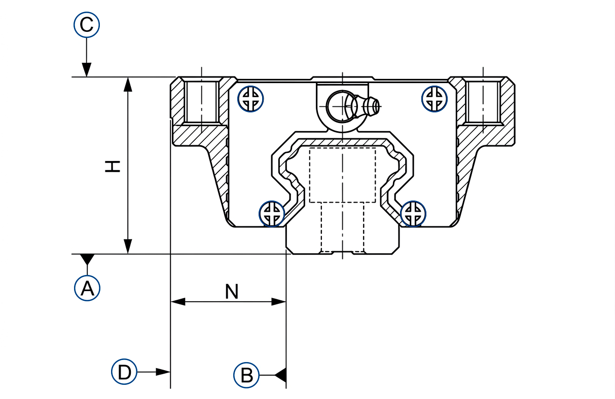
Класс точности - это совокупность допустимых отклонений геометрических параметров направляющей и каретки от их номинальных значений. Нормируются два основных параметра: отклонение по высоте (H) и отклонение по ширине (N). Чем меньше эти отклонения, тем точнее каретка движется по рельсу, тем стабильнее позиционирование и выше повторяемость перемещений рабочего органа.
Помимо допустимых отклонений, нормируется и среднее отклонение - усреднённое значение, характеризующее стабильность хода каретки на всей длине рельса. Этот параметр особенно важен для оборудования, где необходима равномерность движения без рывков и микровибраций: лазерных и оптических систем, медицинских установок, измерительных стендов.
Третий нормируемый параметр - параллельность хода каретки: поверхность C каретки должна быть параллельна поверхности A рельса, а поверхность D - поверхности B. Эти требования зависят как от класса точности, так и от длины рельса и регламентируются отдельной таблицей стандартов.
Сводная таблица допусков серии HG
Типоразмеры HG-15 и HG-20 (единица: мм)
|
Параметр |
C |
H |
P |
SP |
UP |
|
Допуск по высоте H |
±0,1 |
±0,03 |
0 / −0,03 |
0 / −0,015 |
0 / −0,008 |
|
Допуск по ширине N |
±0,1 |
±0,03 |
0 / −0,03 |
0 / −0,015 |
0 / −0,008 |
|
Среднее отклонение по H |
0,02 |
0,01 |
0,006 |
0,004 |
0,003 |
Типоразмеры HG-25, HG-30, HG-35 (единица: мм)
|
Параметр |
C |
H |
P |
SP |
UP |
|
Допуск по высоте H |
±0,1 |
±0,04 |
0 / −0,04 |
0 / −0,02 |
0 / −0,01 |
|
Допуск по ширине N |
±0,1 |
±0,04 |
0 / −0,04 |
0 / −0,02 |
0 / −0,01 |
|
Среднее отклонение по H |
0,02 |
0,015 |
0,007 |
0,005 |
0,003 |
|
Среднее отклонение по N |
0,03 |
0,015 |
0,007 |
0,005 |
0,003 |
Обзор классов точности серии HG
Класс C - нормальный
Базовый класс точности, предназначенный для широкого круга стандартных промышленных применений. Для типоразмеров HG-15 и HG-20 допустимые отклонения по высоте и ширине составляют ±0,1 мм, среднее отклонение - 0,02 мм. Для HG-25, HG-30 и HG-35 допуски аналогичны: ±0,1 мм по обоим параметрам, среднее отклонение по высоте - 0,02 мм, по ширине - 0,03 мм.
Класс C подходит для оборудования, в котором точность позиционирования не является критически важной: конвейерные системы, вспомогательные оси, механизмы подачи и перемещения с невысокими требованиями к повторяемости. Это экономичный выбор для задач, где главный критерий - надёжность и ресурс работы, а не микронная точность.
Класс H - высокий
Следующий уровень точности с существенно более жёсткими допусками при сохранении широкой универсальности применения. Для HG-15 и HG-20 допустимые отклонения составляют ±0,03 мм, среднее отклонение - 0,01 мм. Для HG-25, HG-30 и HG-35 - ±0,04 мм, среднее отклонение 0,015 мм.
Класс H — оптимальный выбор для большинства задач, где требуется надёжная точность без перехода в прецизионный диапазон. Он широко применяется в станкостроении, автоматизированных сборочных линиях, медицинском оборудовании и системах контроля качества.
Класс P - прецизионный
Прецизионный класс работает в одностороннем поле допуска: отклонения допускаются только в минусовую сторону. Для HG-15 и HG-20 это от 0 до −0,03 мм, среднее отклонение - 0,006 мм. Для HG-25, HG-30 и HG-35 - от 0 до −0,04 мм, среднее отклонение 0,007 мм.
Односторонний допуск обеспечивает более предсказуемое и стабильное позиционирование, исключая разброс в обе стороны от номинала. Класс P востребован в координатно-измерительных машинах, прецизионных обрабатывающих центрах и оборудовании для производства электроники.
Класс SP - супер прецизионный
Ещё более жёсткий уровень допусков. Для HG-15 и HG-20 отклонения находятся в диапазоне от 0 до −0,015 мм, среднее отклонение - 0,004 мм. Для HG-25, HG-30 и HG-35 - от 0 до −0,02 мм, среднее отклонение 0,005 мм.
Класс SP применяется там, где требуется высочайшая повторяемость позиционирования: в полупроводниковом производстве, оптических системах, лазерном оборудовании и высокоточных измерительных стендах.
Класс UP - ультра прецизионный
Высшая ступень точности в серии HG. Для HG-15 и HG-20 допустимые отклонения составляют от 0 до −0,008 мм, среднее отклонение - 0,003 мм. Для HG-25, HG-30 и HG-35 - от 0 до −0,01 мм при том же среднем отклонении 0,003 мм.
Класс UP используется в наиболее требовательных приложениях: нанотехнологическом оборудовании, высокоточных шлифовальных станках для производства оптики, системах позиционирования для аэрокосмической и оборонной промышленности. Компоненты этого класса, как правило, проходят индивидуальный контроль и поставляются с паспортом измерений.
Параллельность хода: ещё один критический параметр
Наряду с размерными допусками, стандарт нормирует параллельность хода каретки относительно опорных поверхностей рельса (поверхность C каретки к поверхности A рельса и поверхность D к поверхности B). Этот параметр измеряется в микрометрах и зависит как от класса точности, так и от длины рельса.
Для наглядности приведём значения для некоторых диапазонов длин:
|
Длина рельса (мм) |
C (мкм) |
H (мкм) |
P (мкм) |
SP (мкм) |
UP (мкм) |
|
до 100 |
12 |
7 |
3 |
2 |
2 |
|
300–500 |
17 |
12 |
6 |
3 |
2 |
|
900–1100 |
24 |
16 |
9 |
6 |
3 |
|
1900–2500 |
31 |
22 |
15 |
10 |
5 |
|
3600–4000 |
37 |
28 |
21 |
15 |
7 |
Как видно из таблицы, при увеличении длины рельса допустимое отклонение параллельности хода неизбежно растёт - это физически обусловленная закономерность. Именно поэтому для длинных рельсов выбор более высокого класса точности оказывается особенно оправданным: разница между классом C и UP на рельсе длиной 4000 мм составляет более 30 мкм.
Невзаимозаменяемые системы: что это значит на практике
Стандарты точности серии HG описывают параметры невзаимозаменяемых систем. Это означает, что каретка и рельс подбираются и настраиваются в паре: произвольная замена одного компонента без учёта класса точности другого может привести к ухудшению характеристик всей системы. При комплектации линейного узла необходимо заранее определиться с требуемым классом точности и подбирать рельс и каретку в соответствии с ним.
Что предлагаем мы
В нашем каталоге рельсовые направляющие серии HG представлены в классе H (высокий). Этот класс является универсальным решением для подавляющего большинства промышленных применений: достаточно жёсткие допуски для точного позиционирования при экономически обоснованной стоимости.
Каретки доступны в двух классах точности:
-
C (нормальный) - для задач с невысокими требованиями к точности позиционирования: вспомогательные оси, транспортные и подающие механизмы.
-
H (высокий) - рекомендуется для оборудования с повышенными требованиями к точности и плавности хода. Каретка класса H в паре с рельсом класса H обеспечивает полное соответствие заявленным характеристикам системы.
Как выбрать подходящий класс точности
При выборе класса точности стоит ориентироваться на три ключевых фактора:
-
Требования к точности позиционирования. Допуск в десятых долях миллиметра - достаточно класса C. Сотые доли - класс H или P. Единицы микрон - SP или UP.
-
Условия эксплуатации. Вибрации, ударные нагрузки, высокие скорости - в таких случаях разумно выбрать класс на ступень выше минимально необходимого.
-
Экономическая целесообразность. Компоненты высоких классов точности стоят дороже и требуют более тщательного монтажа. Переплачивать за прецизионный класс там, где достаточно нормального - нецелесообразно.
При любых сомнениях в выборе наши специалисты готовы помочь подобрать оптимальное решение с учётом требований вашего оборудования и бюджета.

